The Grand Columbia
THE Grand COLUMBIA
Available at Columbia Meadows
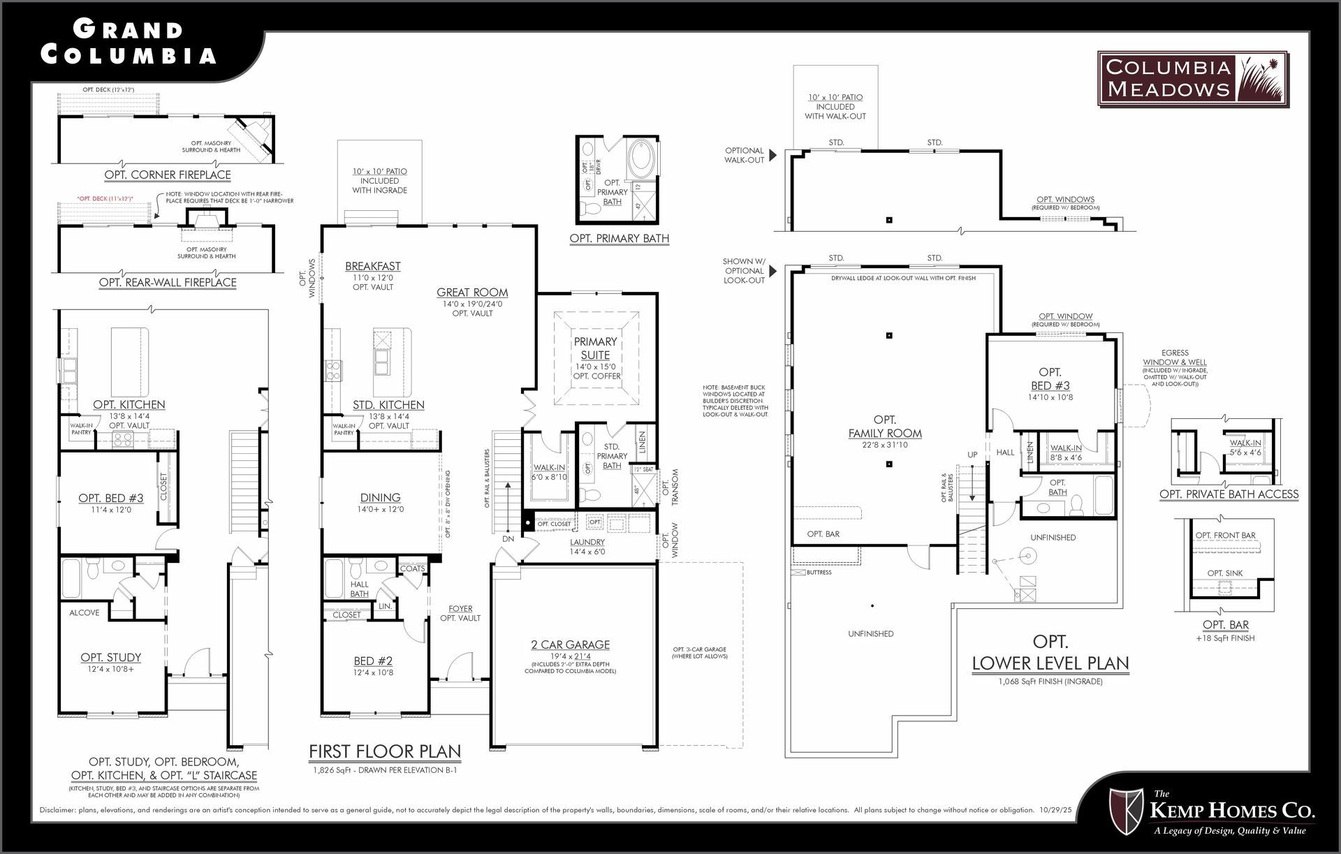
Sheer luxury, exceptional value. With over 1,800 square feet of thoughtfully designed living space, the Grand Columbia offers a perfect balance of comfort and style, all on one level. Its flexible floor plan provides room to live, entertain, and relax with ease. (Some photos may show optional features available at additional cost).
Signature Features of the Columbia
- 2nd Bedroom w/ Walk in Closet
- Spacious Kitchen & Dining Area
- Granite Kitchen Countertops
- Quality Appliances & Cabinetry
- Walk-In Pantry
- Luxurious Owner's Retreat
- Master Bath w/ Gleaming Cultured Marble Vanity & Shower Surround
- Spacious Master Bedroom Closet
- Large Study / Flex Room
Value- Enhancing Standards
- 9' First Floor Ceilings
- Full Height Pour Basement (8')
- Insulated Low-E Windows
- 30-Year Architectural Shingles
- Fully Sodded Yard (Disturbed Areas )
- Landscape Package
- Irrigation System
- Refer to Standard Features Sheet for Additional Information
Available Options
- Alt. Kitchen & Enlarged Study
- Fireplace(s)
- Alt. Master Bath
- Deck/Covered Deck
- Alt. Study
- Lower Level Plan
- Alt. Lower Level Plan
- Additional Options Available Upon Request
2 Bedrooms
1,826 Sq. Ft.
2 Bathrooms
2 Car Garage (Std.)
Opt. 3 Car Available
ELEVATIONS
View Our Seven Distinguished Elevations
FLOORPLAN
View Floorplan & Available Options
VIRTUAL TOUR
Take a Virtual Tour
PHOTO gallery
View Interior Photos
View Exterior Photos
contact us
Need More Information? Contact Us Today!
CONTACT US
Have questions or want to schedule time with our community sales manager? Contact us today to learn more.




















